Sind Sie auf der Suche nach dem gewissen Etwas? Ihr neues Zuhause soll so individuell wie Sie sein und keineswegs von der Stange?
Dieses in den frühen 1920ern erbaute Mehrgenerationenhaus besitzt seine eigene Geschichte; ist so verwinkelt wie manche Lebenslinie. Einiges wurde bereits in Angriff genommen, anderes benötigt noch Aufmerksamkeit: 2 Bäder zum Beispiel sind schon modernisiert und die Fenster erneuert worden.
Doch besteht durchaus noch Sanierungsbedarf, um das Gebäude samt Hof rundum zu einem Schmuckstück werden zu lassen: Zum Beispiel wurde das Dach teils gedämmt, es sind aber noch sichtbare Nachbesserungsarbeiten nötig. Die Außenfassade und zwei Innenräume haben natürliche Setzungsrisse. Auch das Eternitdach der Anbauterrasse bedarf noch Aufmerksamkeit.
Möchten Sie das Haus für sich und ihre Familie nutzen, ein Mehrgenerationenheim entstehen lassen oder sehen Sie sich eher als Vermieter?
Es wäre durchaus möglich, aus den insgesamt ca. 150qm Wohnfläche 3 separate Wohneinheiten zu generieren, handwerkliches Geschick vorausgesetzt.
Die hellen Räume im EG wurden mit Laminat/Holzböden verlegt. Hier haben Sie auch einen eigenen separaten Zugang zur umfriedeten Garageneinfahrt, sodass Sie hier ganz einfach mal eben nach draußen in Ihre Werkstatt laufen können, um Ihrem Hobby nachzugehen. Da die hier anschließende Garage sehr geräumig ist, haben Sie genug Platz für Stauraum.
Das 1.OG bietet Ihnen mit den beiden separaten Schlafzimmern die Möglichkeit, Kindern oder Gästen einen eigenen Raum zu geben, oder Sie nutzen selbst ein Zimmer als Homeoffice. Vor allem hervorzuheben ist hier die großzügige überdachte Terrasse, die Sie nach getaner Arbeit zu einem entspannten Feierabend einläd. Neben der Terrasse gibt es noch einen nicht ausgebauten Dachboden, der über der Garage liegt.
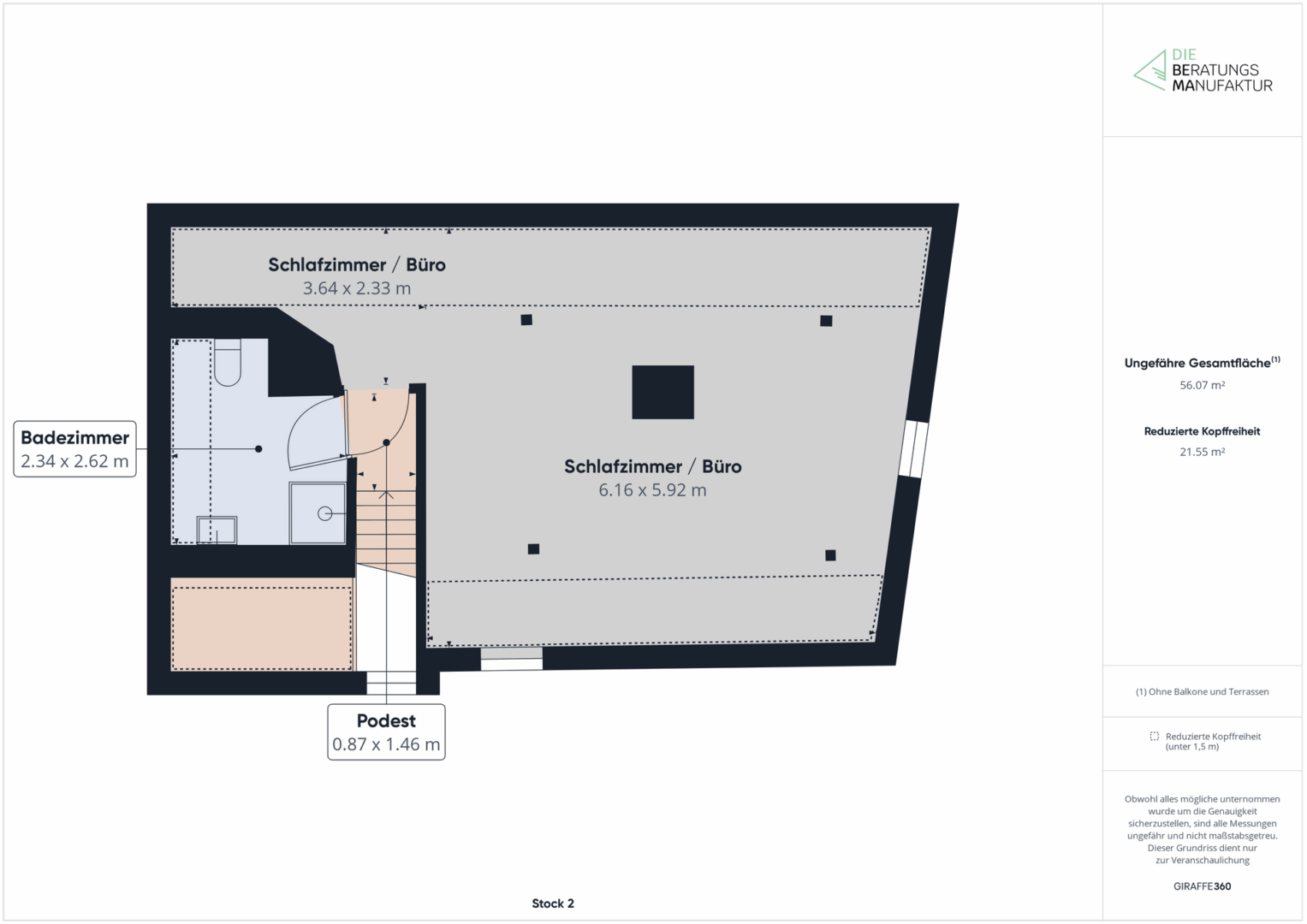
Im 2.OG könnte eine Einraumwohnung entstehen, die die schönen vorhandenen Zimmerbalken gut ins Szene setzt.
Was auch immer Ihre Träume sind, machen Sie sich doch am besten selbst vor Ort ein Bild von diesem einzigartigen Gebäude. Wer weiß, ob nicht genau hier Ihre Träume wahr werden?!









