Das Reihen-Mittelhaus wurde durch namhafte Bauunternehmen in massiver Bauweise
gefertigt. Die Fertigstellung war März 2022.
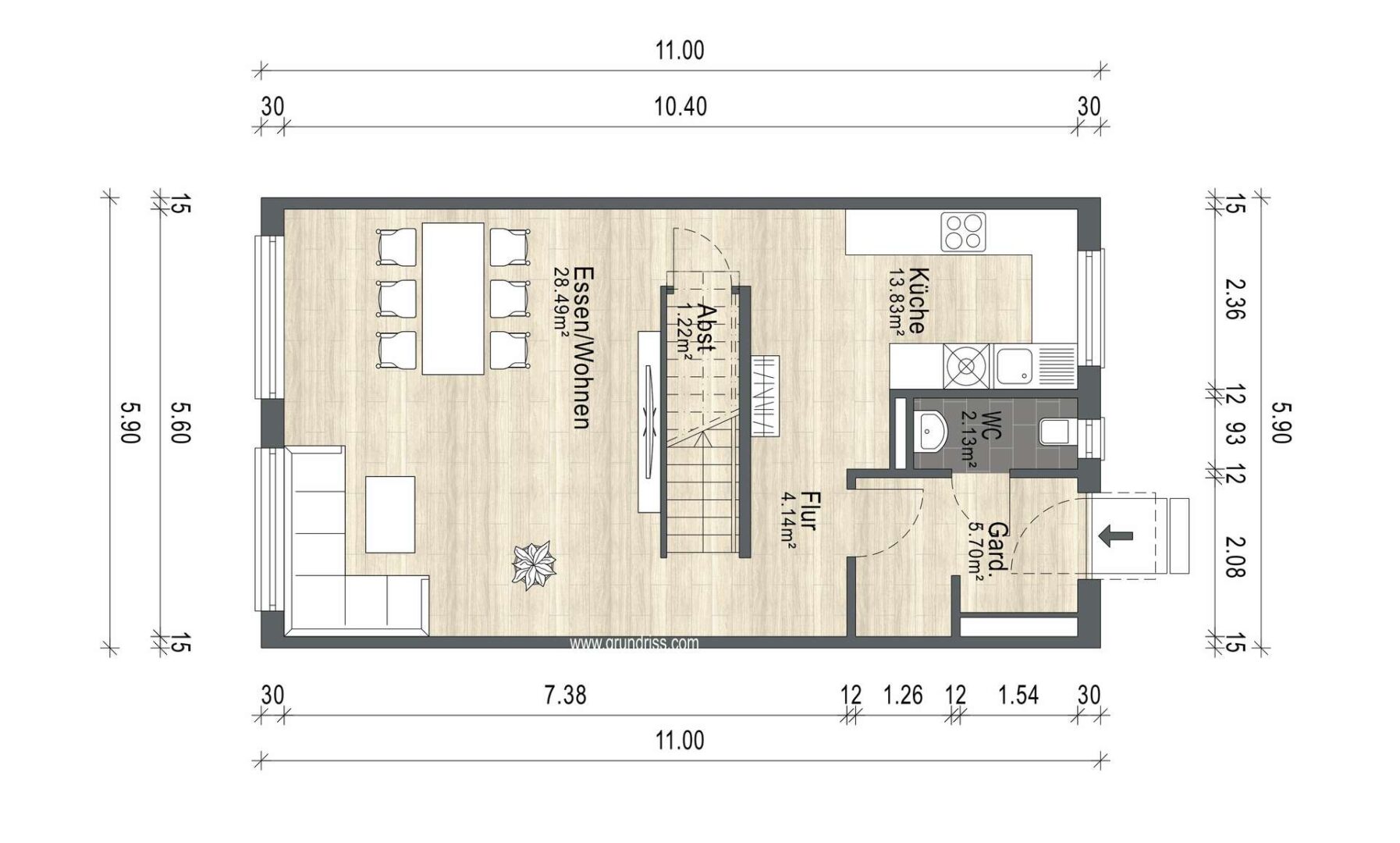
Nach dem Betreten des Hauses gelangen Sie in den Eingangsbereich mit Garderobe und Zugang zum Gäste-WC. Im Wohnbereich befindet sich zu Ihrer Rechten die Küchenecke und gerade aus der Wohn- /Essbereich mit Zugang zur Terrasse mit Garten in Südlicher Ausrichtung. Unter der Treppe befindet sich noch ein kleiner praktischer Abstellraum.
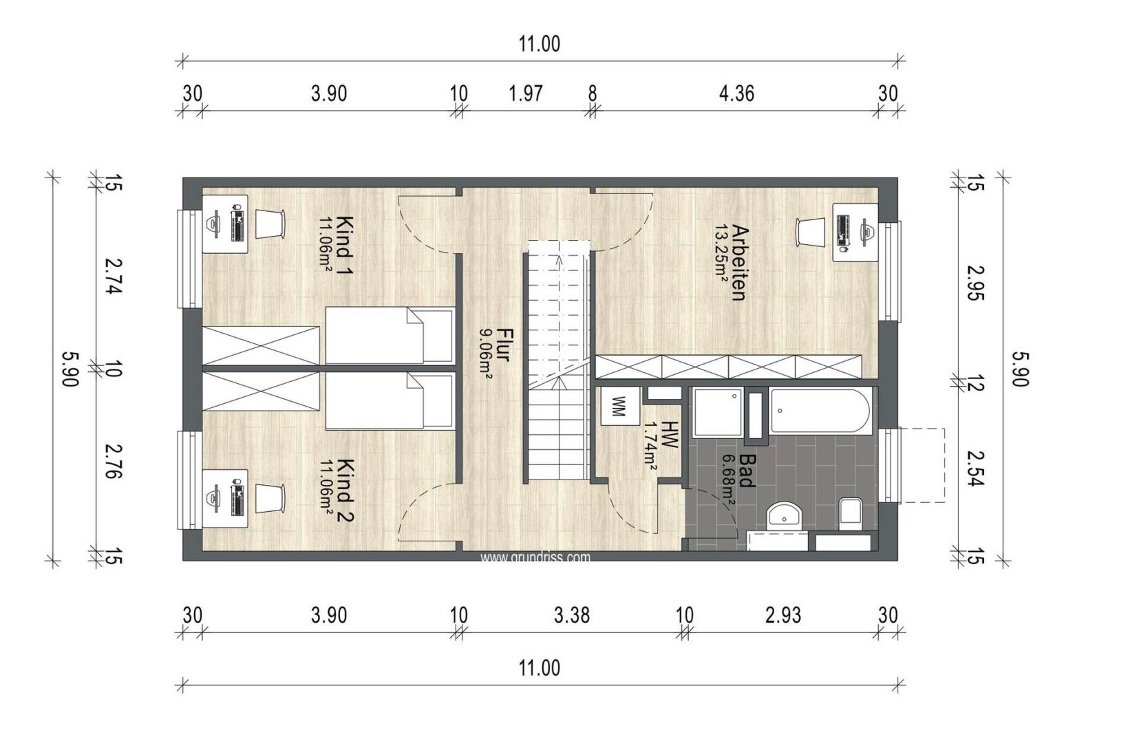
Angekommen im 1. Obergeschoss befinden sich auf der linken Seite zwei gleichgroße Kinderzimmer und auf der rechten Seite ein Büro welches auch als 3. Kinderzimmer genutzt werden könnte. Um die Treppe herumgegangen, gelangen Sie zum Hauptbadezimmer des Hauses. Dieses modern gestaltete Badezimmer ist mit einer Dusche, Badewanne und Fenster ausgestattet.
Über die Treppe gelangen Sie nun in das wunderschöne Atelier. Dieses ist als Elternschlafzimmer vorgesehen und bietet sehr viel Platz und Gestaltungsfreiheit in der Einrichtung.
Angekommen an Ihrem neuen Zuhause, haben Sie Platz für 2 Autos. Zum einen als Stellplatz und zum anderen als Carport. Am Carport befindet sich zusätzlich ein abschließbarer Raum. Das direkt am Karpfenkreisel und über der B470 zugängliche Neubauareal wird mit einem Lärmschutzwall eingefriedet. So leben Sie Zentral und doch in einer Ländlichen, ruhigen Atmosphäre.









