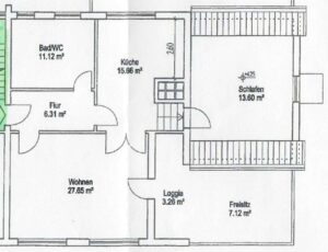
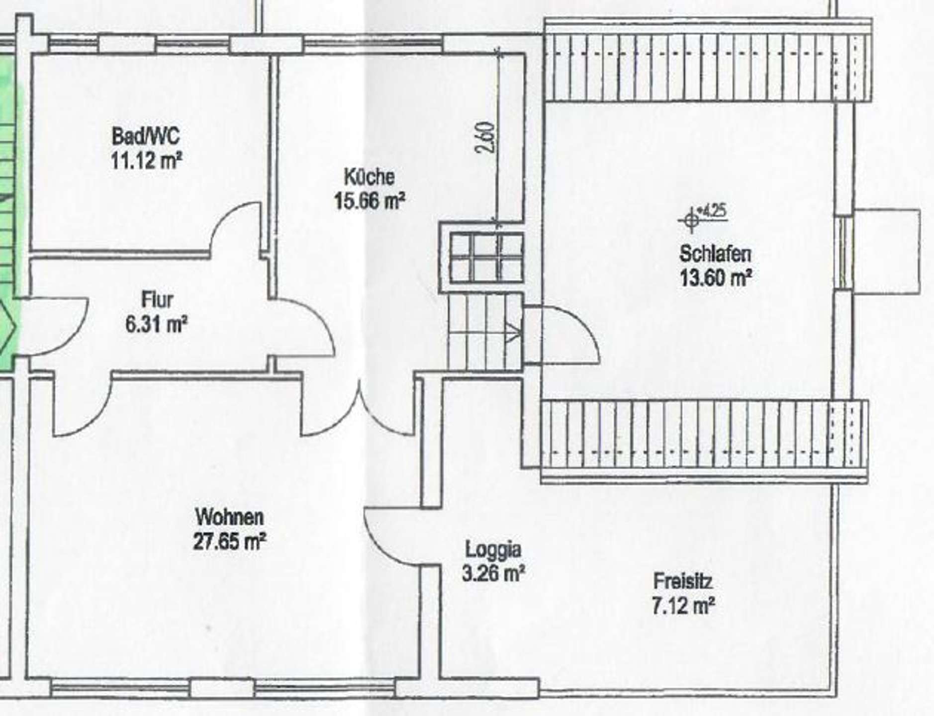
Einziehen und wohlfühlen!
Die 2 Zimmer Wohnung befindet sich in einem sehr gepflegten Mehrfamilienhaus. Sie besticht durch Ihren besonderen Flair und den freundlichen hellen Räumen. Die Wohnung ist für 1 bis 2 Personen ideal geschnitten und bietet viel Platz für Freiräume. Das Wohnzimmer ist lichtdurchflutet und bietet Zugang zu einer riesigen Dachterrasse. Wohlige Wärme wird durch eine Fußbodenheizung erreicht. Ein edles und zugleich helles Bad mit Fenster, separater Badewanne und Dusche sorgen für einen ausgeprägten Wohlfühlfaktor. Die Wohnung ist ausgestattet mit Einbauschränken im Schlafzimmer. Eine hochwertige Einbauküche, mit viel Platz für besondere Kochabende mit Familie und Freunden, ist ebenfalls vorhanden.









